
ESHT
臥式開箱機(上部出箱)
臥式紙箱成型機
• 機台基本顏色配置為灰紅
• 可適用2″、3″貼帶器或特殊貼帶器(1.5″ or 4″~6″)
• 機台顏色及材質(不鏽鋼)可依客戶需求而訂製
• 可選購自動入箱輸送架,以方便疊放紙箱
全自動
紙箱固定尺寸
底部密封
電力需求:400V 50Hz
(可依客戶需求訂製)
空壓需求:100 PSI, 10 SCFM
運輸重量:342-550 lbs
ESHT 型是一台創新的,高效能的開箱機,使用上出箱系統。此開箱機是設計用來包裝重型紙箱,且可快速和變更簡單的紙箱尺寸。紙箱暫存區寬度、紙箱寬度、紙箱高度的調整,可以輕易地用螺絲起子即可調整。如果您在找一種簡易但重型製造的開箱機,這是一台一定要看的機器。
• 速度:每分鐘可達 3 ~ 5 箱
• 運輸重量:342-550 lbs
• 電力需求:400V 50Hz (可依客戶需求訂製)
• 紙箱暫存區容量達到 100 箱
• 由紙箱暫存區以直行式上方出箱
• 吸盤系統
• Omron PLC 邏輯控制
• 可快速的變更紙箱尺寸
• 重型架構
• 故障警報器
• 故障電眼
• 低膠帶警報器
• 重型剎車活動輪或機架腳
• 附測量尺標的把手
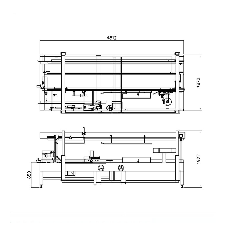
•機械尺寸:
L: 5031.7mm(198.1″) W: 2189.5 mm(86.2″) H: 2110.7 mm(83.1″)
•紙箱最小/最大範圍:
(L):1225mm ; 48.23”
(W):775mm ~ 790mm ; 30.51” ~ 31.10”
(H):360mm ~ 570mm ; 14.17” ~ 22.44”
*紙箱範圍是可以依客戶的需求而制定,請向我們的業務部門洽詢,並提供您特定需求的相關資訊
| 動作 | 空氣消耗量 | |
| 箱/分 | l/min | CFM |
| 8 | 820 | 29 |
• 貼帶器:2″ 貼帶器 & 3″貼帶器
• 緊急停止鈕
• 安全門(可加裝斷電裝置)
• 可選購自動入箱輸送架,以方便疊放紙箱

